HIBIKI RESTAURANT

PROJECT OVERVIEW


Design a restaurant in an old factory in Minneapolis. Use the space’s architectural elements and adhere to codes and the Historical Society’s rules. Create this adaptive reuse space in harmony with its surroundings, offering a unique experience for both locals and travelers. With this in mind, I’ve created an exclusive dining experience inspired by traditional Japanese Gardens and their elements.

PROJECT INFORMATION

TIME

FALL 2024

SQUARE FOOTAGE

3000 SQ FT

LOCATION

MINNEAPOLIS, MN

SOFTWARE

REVIT, ENSCAPE, INDESIGN

CONCEPT

The restaurant concept seamlessly blends modern design with the timeless elegance of traditional Japanese gardens, creating a tranquil and visually captivating space. Using natural materials, such as wood and stone, alongside balanced layouts and symbolic elements. Every detail is thoughtfully curated to reflect the beauty and simplicity of Japanese heritage while embracing a contemporary aesthetic. The design invites guests to immerse themselves in a serene environment where modern sophistication meets the artistry of tradition, offering a dining experience that is both inspiring and relaxing.

PROJECT GOALS

HARMONY

Blend modern style with Japanese Garden Symbolism for a serene, inviting space.

FUNCTION

Optimize the square footage for a comfortable flowing experience.

MEMORIOUS

Create a tranquil, visually serene environment that reflects the brand.

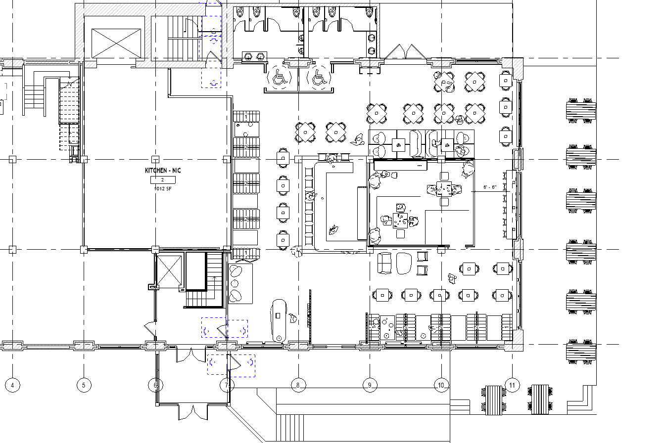
FLOOR PLAN

RENDERS

HOST DESK
SPECIALTY DINING
BAR
OPEN DINING SPACE
BOOTH DINING SPACE

Lucia Jurado

(651) 373-9513 | jurad014@umn.edu

© Lucia Jurado, 2025