NEXT LAW FIRM

PROJECT OVERVIEW

This project, for the Steelcase NEXT competition, entailed designing an innovative law office. The design, located in the ROW DLTA building in Los Angeles CA, encompassed the ever changing practice, valuing sustainability, equality, diversity, and celebrating new ideas, while maintaining the legacy and tradition of law.

PROJECT INFORMATION

TIME

FALL 2025

SQUARE FOOTAGE

15,200 SQ FT

LOCATION

LOS ANGELES, CA

SOFTWARE

REVIT, ENSCAPE, PHOTOSHOP

CONCEPT

NEXT’s Los Angeles office is a sustainable ecosystem that blends a prestigious legal legacy with progressive environmental stewardship. Inspired by the concept of a shared journey, the workplace utilizes human-centered design and regenerative wellbeing features to foster a culture of transparency, equity, and innovation. By partnering with mission-aligned brands like Steelcase, Headspace, and Urban Remedy, NEXT has created a future-forward environment where professional excellence and ecological accountability intersect—shaping the future of law through a deep commitment to its people, the community, and the planet.

PROJECT GOALS

EQUALITY

The design reinforces the firm's core belief that justice begins within, ensuring every employee and client feels supported, valued, and empowered.

WELLBEING

This space ensures well-being is not an afterthought, but a daily practice—strengthening productivity, focus, and long-term satisfaction.

SUSTAINABILITY

Every choice supports a healthier planet while demonstrating that environmental stewardship can be seamlessly embedded into the built environment.

DIVERSITY

Fostering spaces that encourage dialogue, cultural expression, and collective problem-solving. By embracing diverse identities, disciplines, and lived experiences.

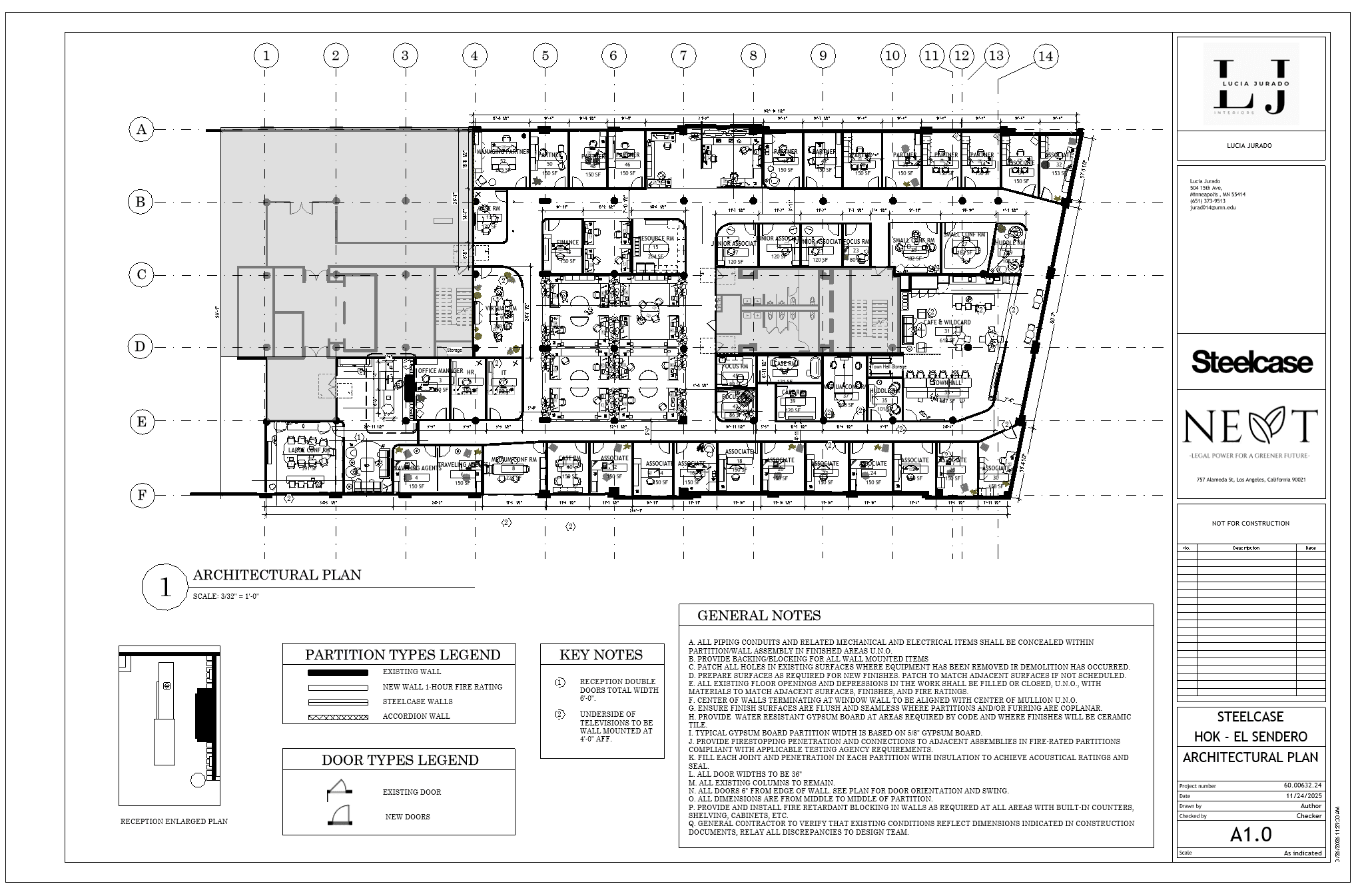
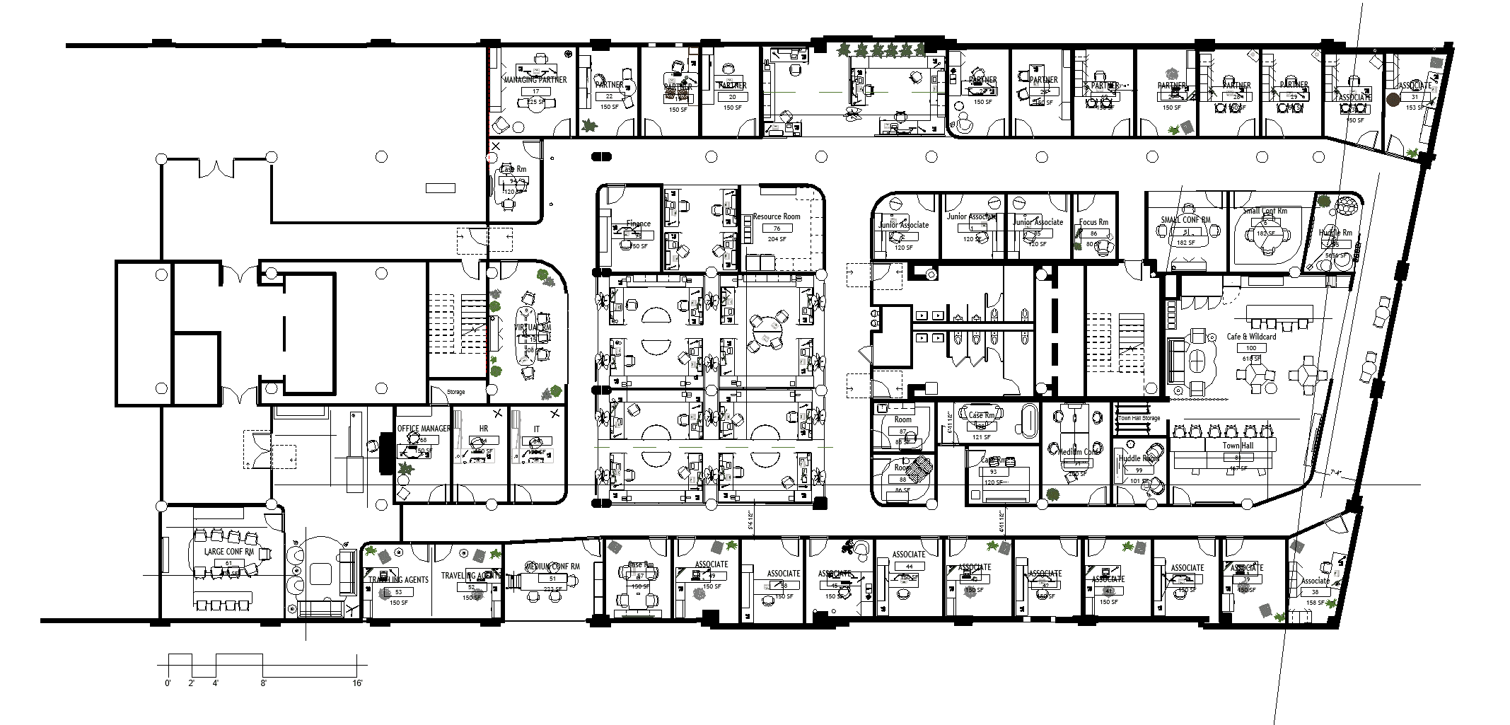
FLOORPLAN

CEILING PLAN

WOODEN BEAM CEILING

OPEN CEILING

ACOUSTICAL TILE CEILING

RENDERS

RECEPTION
HEADSPACE RESPITE ROOM
CAFE
PARALEGAL WORKSTATION
LARGE CONFERENCE ROOM
OPEN OFFICE SPACE

CONSTRUCTION DOCUMENTS

Lucia Jurado

(651) 373-9513 | jurad014@umn.edu

© Lucia Jurado, 2025